Cải tạo nhà 2 mặt tiền tại Phú Yên
Dịch vụ cải tạo nhà ở của chúng tôi mang đến giải pháp trọn gói, giúp không gian sống của bạn trở nên mới mẻ, tiện nghi và đúng với nhu cầu thực tế. Với đội ngũ kỹ sư – kiến trúc sư giàu kinh nghiệm, chúng tôi đảm bảo thi công chuyên nghiệp, tối ưu chi phí và rút ngắn thời gian. Từ nâng cấp nội thất, mở rộng không gian đến cải tạo toàn diện, chúng tôi đồng hành từ ý tưởng đến hoàn thiện, mang lại tổ ấm đẹp bền và thẩm mỹ vượt mong đợi.
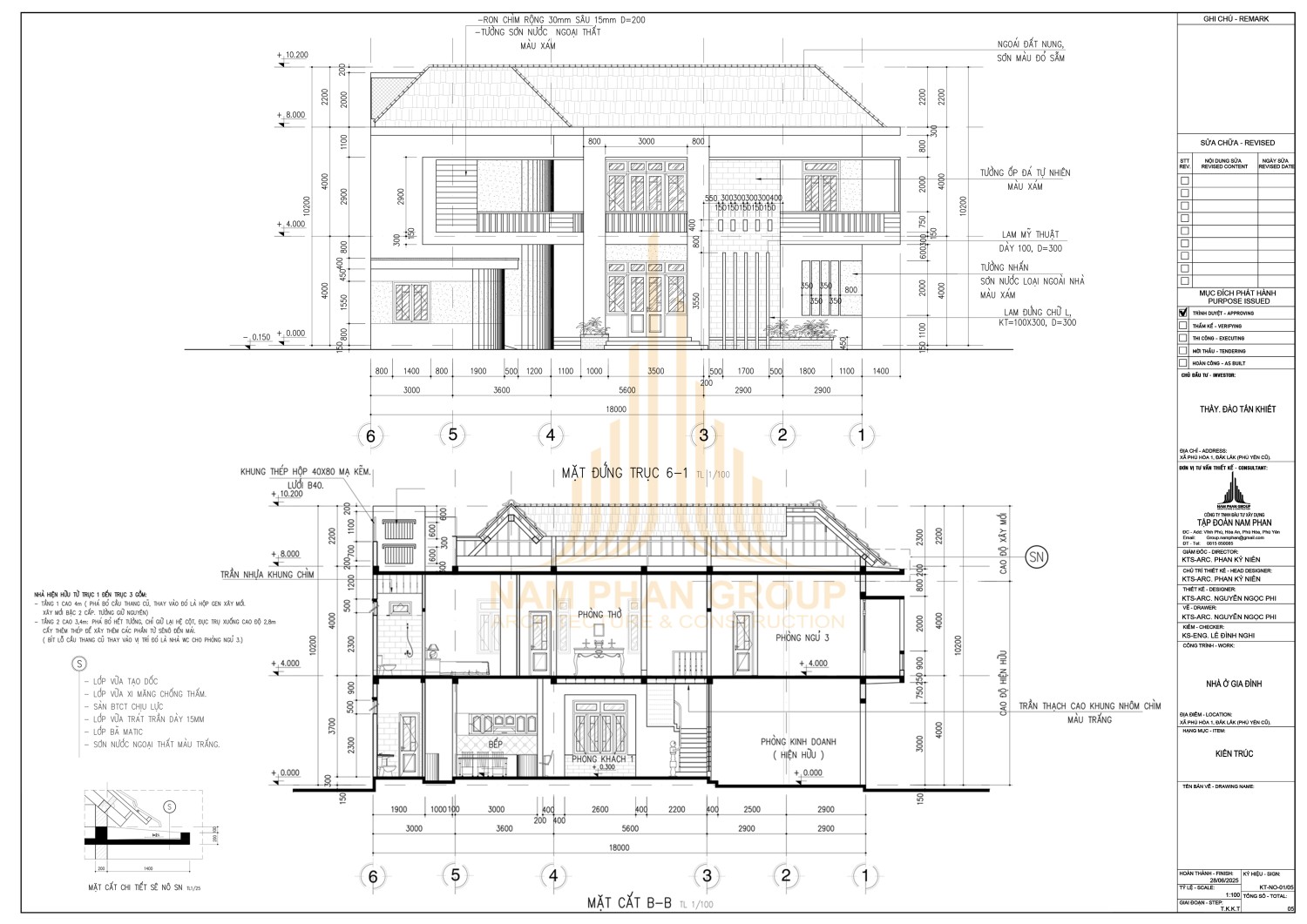
THÔNG TIN CÔNG TRÌNH:
- Chủ đầu tư: Thầy. ĐÀO TẤN KHIẾT
- Địa điểm xây dựng: Xã Phú Hòa 1, Tỉnh Đắk Lắk (Phú Yên cũ)
- Chi phí đầu tư: 1,1 tỷ (chưa bao gồm nội thất)
- Đơn vị Thiết kế - Thi công trọn gói: Công ty xây dựng TẬP ĐOÀN NAM PHAN.
*** Dưới đây là một vài hình ảnh nhà cũ hiện hữu, Thiết kế và Thi công cải tạo của NAM PHAN GROUP. Hãy cùng NAM PHAN GROUP điểm qua bạn nhé!.
1. Hình ảnh nhà hiện hữu:

2. Hình ảnh Thiết kế của NAM PHAN GROUP:




3. Hình ảnh Thi công hoàn thiện thực tế:

..............................................
NAM PHAN GROUP Chuyên Thiết Kế - Thi Công trọn gói Biệt thự ở, Biệt thự nghỉ dưỡng, Nhà ở theo phong cách ĐỘC BẢN và BẢN QUYỀN duy nhất tại Phú Yên.
Hotline: 0815 850085
Website: namphangroup.com
- Chủ đầu tư: Thầy. ĐÀO TẤN KHIẾT
- Địa điểm xây dựng: Xã Phú Hòa 1, Tỉnh Đắk Lắk (Phú Yên cũ)
- Chi phí đầu tư: 1,1 tỷ (chưa bao gồm nội thất)
- Đơn vị Thiết kế - Thi công trọn gói: Công ty xây dựng TẬP ĐOÀN NAM PHAN.
*** Dưới đây là một vài hình ảnh nhà cũ hiện hữu, Thiết kế và Thi công cải tạo của NAM PHAN GROUP. Hãy cùng NAM PHAN GROUP điểm qua bạn nhé!.
1. Hình ảnh nhà hiện hữu:

2. Hình ảnh Thiết kế của NAM PHAN GROUP:




3. Hình ảnh Thi công hoàn thiện thực tế:

..............................................
NAM PHAN GROUP Chuyên Thiết Kế - Thi Công trọn gói Biệt thự ở, Biệt thự nghỉ dưỡng, Nhà ở theo phong cách ĐỘC BẢN và BẢN QUYỀN duy nhất tại Phú Yên.
Tác giả: Nam Phan Group
Nguồn tin: namphangroup.com:





